Page suivante
Page précédente
Boisseron (34160)

Terrain

144 000 €
Réf BOISSERON_TERRAIN_326

TERRAIN RESERVE.

Consultez nos dernières opportunités de terrain sur le secteur, via le moteur de recherche en page d'acceuil.

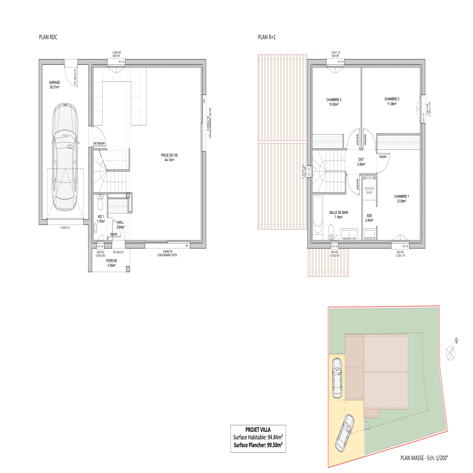
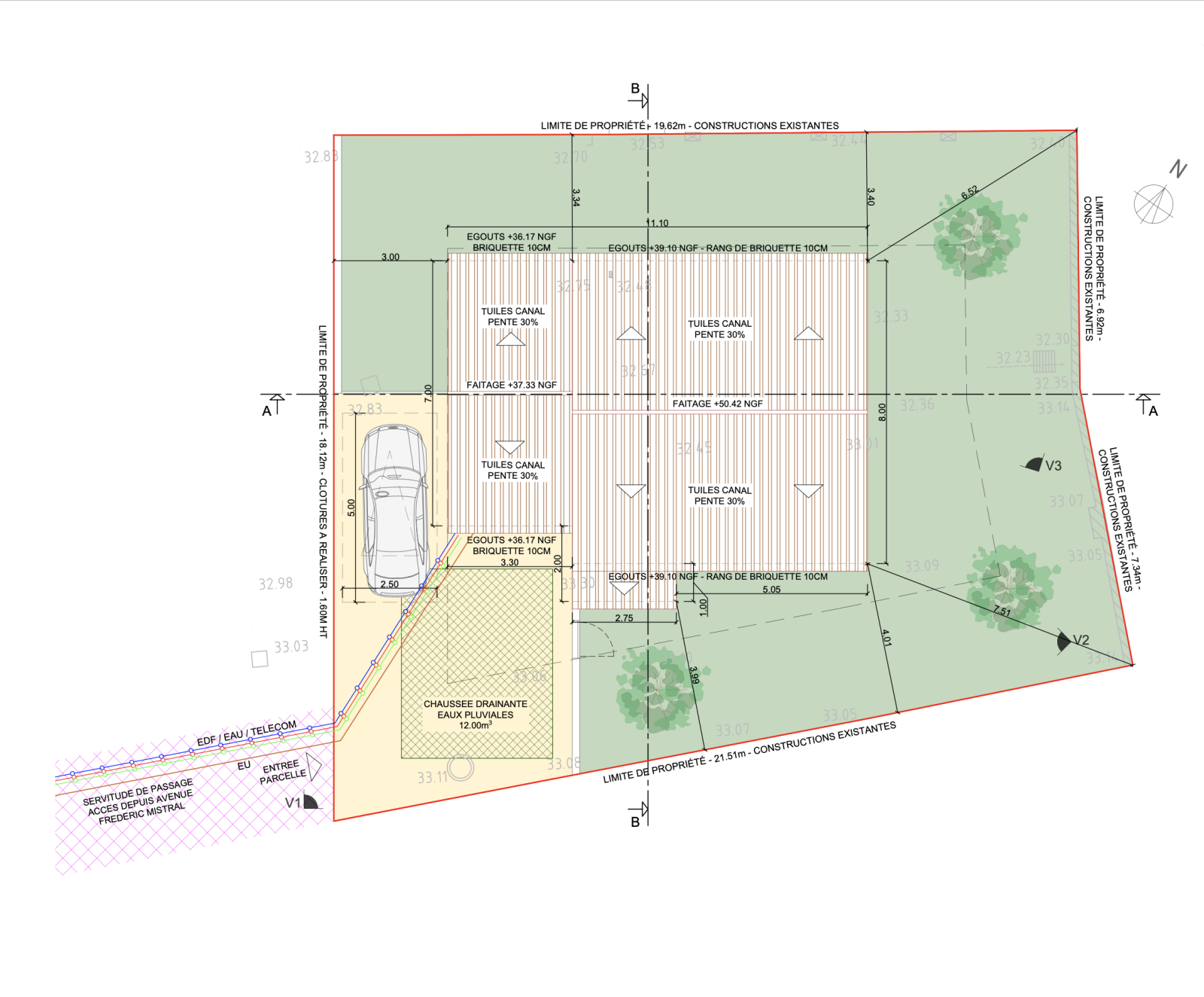
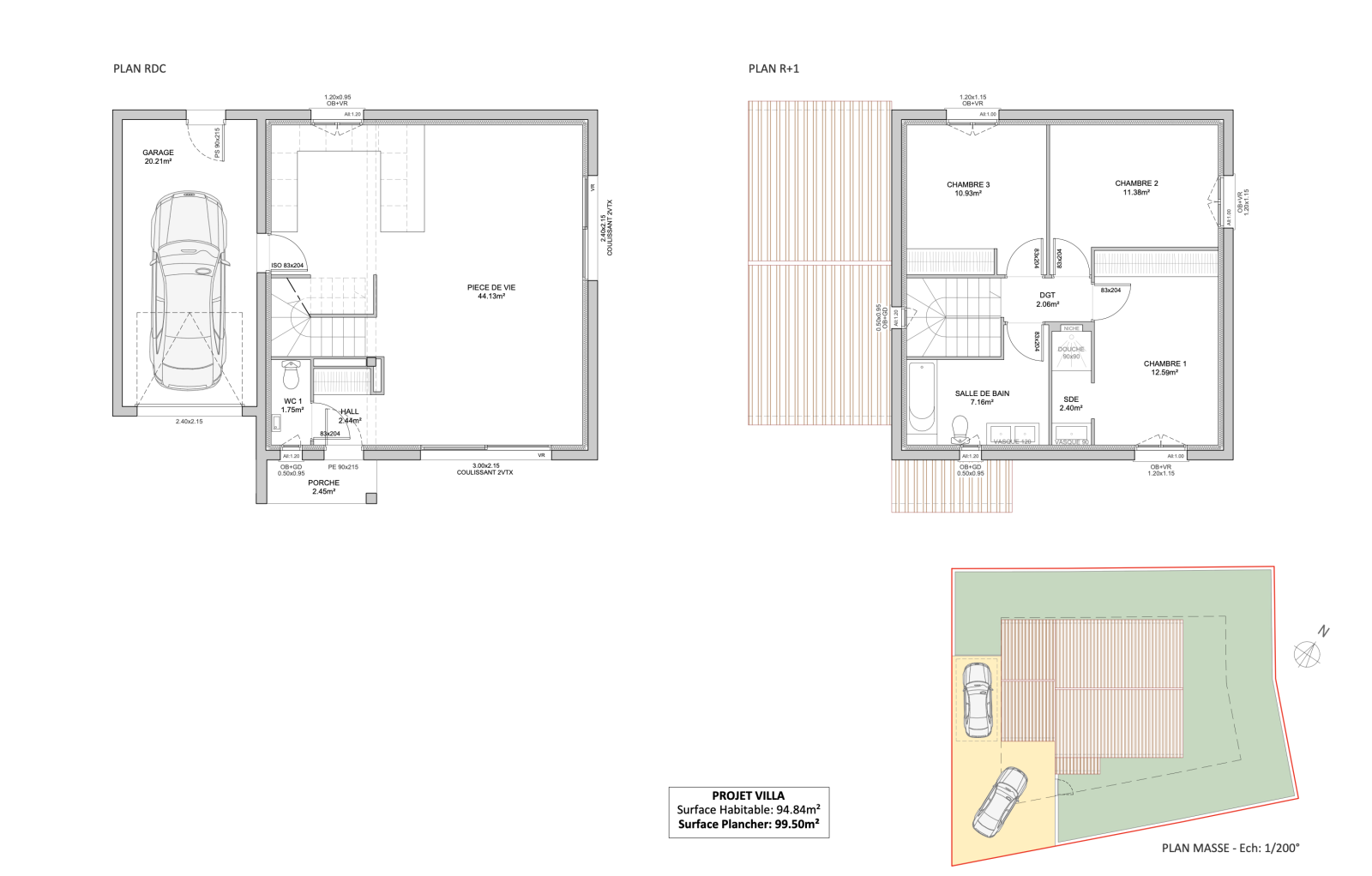
EXCLUSIVITE. Opportunité rare. Boisseron, entre Nimes et Montpellier, accès A9 Lunel à 5 min. 5 min de Sommières et 10 min de Castries. Situé en centre village, au calme et à 5 min de marche des commerces. Terrain entièrement viabilisé de 326m2 et clôturé sur les 4 faces. Vendu entièrement viabilisé (eau potable, assainissement collectif, électricité et téléphone, tous les réseaux seront sur le terrain, prêts à etre raccordé) avec un permis de construire accordé (purge des recours en cours) pour une villa F4 de 95m2 habitables et garage de 20m2 . Exposition Sud Etude de sol G1 réalisée. Prix de vente 144 000€, honoraires agence charge vendeur. Plus de précisions sur demande. Tél 0613444104 Les informations sur les risques auxquels ce bien est exposé sont disponibles sur le site Géorisques : www.georisques.gouv.fr

A propos de ce bien Caractéristiques de ce bien
  • terrain 326 m²
  • exposition Sud
  • piscinable
  • accès handicapé

Financier

Informations financières
Prix de vente honoraires TTC inclus 144 000 €

Autour du bien

Découvrez le quartier

Simulation

Calcul des mensualités
* Champs obligatoires
Prodeom immobilier Neuf Agence